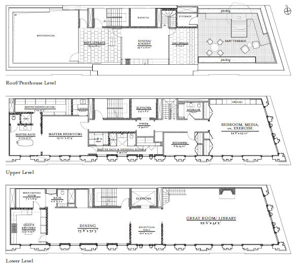
The new Cire Trudon boutique is located in one of the most interesting buildings in New York at 54 Bond Street. The landmark was designed by architect Henry Engelbert in 1874 and housed the Bouwerie Lane Theatre as well as Lauren Hutton, Jane Russell, Brice Marden, Jake Lamotta, and Helen Hayes among others. It is now owned by Adam Gordon who developed into luxury apartments. The top three floors make up the penthouse triplex that can be yours for about $15 million. In the scheme of crazy New York real estate, thar actually seems quite reasonable. The kitchens are a bit modern for my taste but I love how they styled the living room. The amazing windows and roof aren't too bad either. The neighborhood used to be very gritty but has become very gentrified over the years. CBGB is now a John Varvatos store if that is any indication of the change. If you lived here, you could pop over to John Derian to shop or Peels, the new cafe by the owners of Freemans. Oh, that's close by too as are all the shops in Soho. Kind of makes me wish I could buy it!
Wednesday, October 27, 2010
Subscribe to:
Post Comments (Atom)




















No comments:
Post a Comment